Våre annonser

Tallbakkvegen 30 2280 Gjesåsen Norge

Kort om eiendommen

Drømmer du om ro, natur og god plass både ute og inne? Denne unike, arkitekttegnede eneboligen ligger solrikt og fredelig til på Gjesåsen, omgitt av vakker natur. Perfekt for deg som ønsker et unikt hjem, rom for hjemmekontor og muligheter for fritidsaktiviteter rett utenfor døren.

Høydepunkter:
Lys og romslig stue med spisestue og en herlig peisestue.
4 soverom + flere rom som egner seg til kontor, hobby eller gjester.
2 bad, vaskerom og kjeller med fritidsrom og boder.
Kjeller med fritidsrom og boder god plass til trening, verksted eller lagring.
Dobbel garasje med elektrisk port og uttak til strøm på 16 amp. praktisk og romslig.
Overbygd uteplass med utepeis ideelt for sosiale kvelder

Eneboligen er jevnlig og godt vedlikeholdt.

Velkommen til visning!

Inneholder

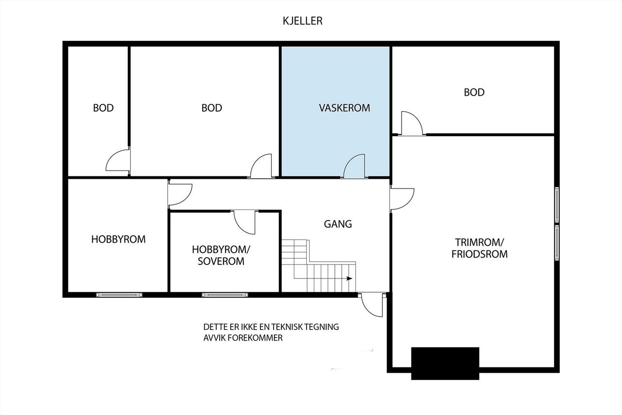
Arkitekttegnet enebolig med 1. etasje og kjelleretasje. 1. etasje: Stue, spisestue, peisestue, kjøkken, 2-bad, vaskerom, 4-soverom, gang, mellomgang og vindfang. U. etasje: Fritidsrom, arbeidsrom, gang med egen utgang, 2 boder.
Frittstående dobbel garasje med strøm på 16 amp.
Tilleggestomt med overbygd uteplass og utepeis.

Det foreligger godkjente byggetegninger datert sak. nr. 63/1097 og byggetegning hagestue, garasje 1983, og disse ligger vedlagt i salgsoppgaven dokumentliste. Det tas forbehold om samsvar mellom de byggegodkjente tegningene mottatt fra kommunen og dagens utnyttelse av eiendommen.

Beliggenhet

Solrik og fin eiendom med landlig og idyllisk beliggenhet på Sønsterud/Gjesåsen i Åsnes kommune, ca. 7 km nordøst for Flisa sentrum, som har et godt utvalg i private og offentlige tjenestetilbud, og den berømte, trivelige Kaffegata i Flisa, med flere serveringstilbud. Eiendommen har utsikt over boligområder og nærliggende skog landbruksarealer, i et område med fine solforhold. Det er kort avstand til Fliselva med fine bade og fiskemuligheter.

Det er kort vei til Gjesåsen klatrepark om man vil utfordre seg med høyder og spenning i et anlegg som passer for alle alderstrinn. Gjesåsen klatrepark ligger idyllisk til ved siden av Gjesåsen kirke. Klatreparken er en riktig familiepark, med ponny-ridning i skolenes sommerferie, dyr på beite, kjempetrampoliner, slakkline, tråtraktor, stylter, sandkasse, kjempehuske og andre leker. I resepsjonen selges sunne vafler, is fra Rørosis, bringebærsaft, te og kaffe. Det er griller til utlån, og mange utendørs sitteplasser til fri benyttelse. Klatreparken tilbyr også overnatting i tretelt. Teltene henger 1,5 til 5 meter over bakkenivå. Det er plass til tre voksne personer pr telt. Mange fine turstier rundt klatreparken, for eksempel til toppen av det nærliggende Gjesåsberget. Klatreparken har fortsatt barneløypa i drift.

Åsnes kan by på mange forskjellige aktiviteter som bl.a. Kjellmyra IL som er et fleridrettslag som tilbyr ski, fotball, orientering og dans. Solør bowling på Flisa, Ponni trav med Åsnes og Hof travklubb, Fv 434. Aasa Miniskytterlag med skyting for luftgevær og rifle på Flisa. Solør bueskyttere på Flisa, og Solør Frisbeeklubb med frisbeegolf i skolevegen 11 på Flisa. Det er i regi av prosjektet "Sykkelruter Åmot-Elverum-Solør" merket flere fine sykkelruter i distriktet. I Åsnes blir det kjørt opp skiløyper i regi av Kjellmyra IL og Åsa/Hof ski.

Åsnes største badeplass, 300 meter sandstrand, grøntareal/plen, over 100 parkeringsplasser, volleyballbane, seks treningsapparater, båtutkjøring, badeflåte, livbøye, gapahuk med 20 sitteplasser og bord, to bålplasser, grill, fire store rastebord, en utedo, 1 km tursti med to store rastebord, kommunal søppeltømming. Kirkekretsen Vel drifter plassen for private grunneiere. En liten kjøre tur unna mot svenskegrensen finner du Vermundsjøen. Her er det sandstrand, toalett, søppeldunker og en stor grill samt bord (type rasteplass-bord). Ansvarlig for badeplassen er Vermundsjøen Velforening og det er kommunal søppeltømming, badebrygge, god plass til parkering.

Adkomst

Adkomst fra gruset kommunal vei og asfaltert innkjøring. For veibeskrivelse henvises det til vedlagte kart i salgsoppgaven. Det vil bli skiltet med Meglerhuset visningsskilt ved felles visninger

Standard

Arkitekttegnet enebolig av Arkitekt F.E. Kalfoss, med 1. etasje og kjeller, bygningsmasse hovedsakelig fra opprinnelig byggeår. Kjeller med innvendig og utvendig adkomst. Dobbel garasje, overbygget uteplass med utepeis. Steinbelagt adkomst til overbygget inngang og uteplass. Det er asfaltert innkjøring til gårdsplass og garasje. Eneboligen har fått utvendige overflatebehandlinger fra perioden 2024-2025. Skiftet pipehette og ny peisovn i stue 2022. Skiftet peisinnsats i peisestue i 2013. Nytt takbygg på dobbelgarasje og en ny elektrisk garasjeport i 2020. Boligen har noe oppussing- og moderniserings behov som gir deg muligheter til å sette ditt eget preg.

Eneboligen fremstår som lys, innholdsrik og trivelig med fin beliggenhet innerst i Tallbakkvegen 30 og inneholder:

Gang, entré:
Du ønskes velkommen hjem via et overbygget inngangsparti med pergola, som har steinbelagt adkomst med egen uteplass og trapp ned til kjelleretasjen. I vindfanget er det også trapp ned til kjelleretasjen og adkomst til en lys og trivelig entré med oppheng for yttertøy, tilkomst til peisestuen, bad 1, kjøkken. Entréen har tilkomst til stuen i en åpen løsning og har en plassbygget bokreol. Det er laminat på gulv, malt panel på vegg og i himling.

Stuene:
Stuen er lys, romslig og trivelig i en rektangulær utforming med peisovn plassert i hjørnet av rommet og har en egen utgang til hagen. Stuen er i en åpen løsning til spisestuen og har tilkomst til 3 soverom. Spisestuen er sørøstvendt med et fint utsyn til hagen og nærliggende åker og eng. Her er det en luft-til-luft varmepumpe montert oppe på vegg og det er god plass til spisemøblement. Det er belegg på gulv, malt panel på vegg og i himling.

Flott peisestue med adkomst i fra entré og har store takhøye vindusflater mot sørøst, med en innmurt peis i pipeløp på midten av veggen. Her er det en fin utsikt til hagen, nærområdet med åker og eng. Det er høyt skråtak i rommet, som gir en meget god romfølelse. I hjørndedelen er det 2 vinduer med blyglass og en luft-til-luft varmepumpe montert oppe på veggen. Det er parkett på gulv, malt panel og tapet på vegg og malt panel i himling.

Kjøkkenet:
Rustikt og romslig kjøkken med spiseplass fra opprinnelig byggeår med adkomst fra gang/entré og mellomgang. Kjøkkenet er lyst og trivelig med store vinduer i nordøstlig retning med utsyn mot hage og nabobebyggelse. Kjøkkeninnredning med malte profilerte fronter og laminerte skrog, laminert benkeplate med nedsenket oppvaskkum og utslagsvask i metall. Veggflater over benkeplater med fliser, overgang med trelist. Kjøkkenet har opplegg for oppvaskmaskin og hvitevarer er montert i kjøkken nisjer. Ventilator over koketopp med avkast ført over tak direkte til friluft. Lekkasjevakt og komfyrvakt er ikke montert. Kjøkken har over- og underskap med normal bruksslitasje, enkelte fronter med noe justeringsbehov. Ingen påviste tegn til fuktrelaterte følgeskader som kan settes i sammenheng med rommets funksjoner. Kombiskap med kjøl/frys og oppvaskmaskin medfølger i salget. Opprinnelig komfyr fra bilder i annonsen følger ikke med handelen, men en solid Beha hvit komfyr med emaljert koketopp med støpejernsplater, meget pent brukt, som kan følge med etter nærmere avtale selger.

Badene:
Bad 1 har blandet alder og er beliggende med adkomst fra gang/entré, og har flis på gulv med varme, vegger med malt beleggsoppbrett og laminerte plater. Installasjoner med servant på vegg med underskap, speil med lysarmatur montert over, dusjnisje med skyvedører i glass og gulvmontert toalett. Takess plater i himling og ventilasjon med naturlig avtrekk via himlingsventil, tilluft via spalte under dørblad.

Bad 2 er fra opprinnelig byggeår og er beliggende i mellomgangen ved kjøkkenet, vaskerommet og hovdesoverommet. Det er flis på gulv med varme, vegger med malt beleggsoppbrett og laminerte plater. Installasjoner med servant på vegg med underskap og speil med lysarmatur over. Badekar med opplegg for dusj, dusjforheng og skilleplate i glass, og gulvmontert toalett. Takess plater i himling og ventilasjon med naturlig avtrekk via himlingsventil, tilluft via spalte under dørblad. Begge badene har behov for renovering.

Praktisk vaskerom med adkomst fra mellomgang, har installasjoner med opplegg for vaskemaskin under benkeplate med skuffeseksjon, vindu over arbeidsbenk og en utslagsvask i metall, montert på vegg. Det er belegg på gulv, vegger med beleggsoppbrett og tapet. Takess plater i himling og ventilasjon med naturlig avtrekk via himlingsventil, tilluft via åpen dør.

Soverommene:
Soverom 1 er beliggende i mellomgangen mellom kjøkkenet, bad 2 og vaskerommet i husets nordøstlige retning. Hovedsoverommet har en romslig plassbygget garderoløsning, vindu med rullegardin og lufteventil. Det er belegg på gulv, malt tapet på vegg og takplater i himling.

Soverom 2 er beliggende i husets sørvestlige retning i enden av boligen og har vindu med utsyn mot hagen. Soverommet har adkomst fra spisestuen/stuen. Det er belegg på gulv, rødmalt panel på vegg og plater i himling.

Soverom 3 er beliggende vegg i vegg mellom soverom 2 og 4 og har vindu i nordvestlig retning. Dette rommet er litt mindre enn soverom 2 og har en plassbygget dobbel garderobeløsning. Det er vegg til vegg teppe på gulv, blåmalt panel på vegg og plater i himling.

Soverom 4 er beliggende med adkomst fra stuen og har har en plassbygget dobbel garderobeløsning og vindu i nordvestlig retning. Det er vegg til vegg teppe på gulv, hvitmalt panel på vegg og plater i himling.

Innvendige overflater består i hovedsak av:
Gulv med parkett, belegg, laminat og teppe.
Vegger med behandlet panel, tapet og malte plater.
Himling med behandlet panel og laminerte plater.

Innholdsrik og romslig kjelleretasje med trappegang og gangrom, med innvendig og utvendig adkomst. Her er et romslig fritidsrom med vedovn i hjørnet av rommet, 2 vinduer og lufteluke oppe på vegg, og et bodrom i bakkant. Det er belegg på gulv, malt betong på vegg og i himling. I kjelleretasjen er det også et romslig arbeidsrom med med rektangulære vinduer oppe på vegg og lufteluke. Det er belegg på gulv, panel og betong på vegg og betong i himling. I øvrig del av kjelleretasjen er det også et romslig bodrom/teknisk rom og et svalt bodrom. Hele etasjen er støpt i betong.

Herlig og trivelig uteplass/pergola mot øst med adkomst fra terreng. Gulv med belegningsstein. 2 yttervegger i bindingsverk med utvendig liggende kledningsbord, øvrig er åpent. Tak med sperrekonstruksjon tekket med transparente plater. Renner og nedløp er ikke montert. Ildsted med åpen peis i murt omramming. Målt gulvarael på 12 m2.

Romslig frittstående garasje med asfaltert adkomst og parkeringsplass for 2 biler, opprinnelig byggeår 1972. Takkonstruksjon med saltak fra ca. 2021. Gulv med støpt såle på mark, grunnmurer i Leca med utvendig malt pussbehandling. Yttervegger i bindingsverk med utvendig liggende kledningsbord. Saltakkonstruksjon tekket med metallplater, renner og nedløp i metall. Tekking samt renner og nedløp fra ca. 2021. Innvendige vegger og himling med åpent bindingsverk. 1 malt vippeport i tre og 1 garasjeport i aluminium tilknyttet automatikk. Det er uttak for strøm på 16 amp. i garasjen.

For nærmere beskrivelse av standard og tilstand, se tilstandsrapport og egenerklæring som er vedlagt i salgsoppgaven.

Hvitevarer

De hvitevarer som står i leiligheten under visning, kan medfølge i handelen etter nærmere avtale med selger. Det gis ingen garantier i forhold til tilstand, funksjonalitet eller levetid på disse.

Betalingsbetingelser

Med mindre annet er avtalt forutsettes det at kjøpesum inkl. omkostninger er innbetalt og disponibelt på meglerforetakets klientkonto - samt pantedokument tilknyttet eventuelt lån - skal være disponibelt hos megler senest to dager før overtakelse.

Overtagelse, tilleggsinfo.

Overtakelse etter nærmere avtale med selger. Det oppfordres til å nevne ønsket overtagelse ved avleggelse av bud.

Bebyggelse

Boligområder og nærliggende skog landbruksarealer.

Byggemåte

Arkitekttegnet enebolig med 1.etasje og kjeller, bygningsmasse hovedsakelig fra opprinnelig byggeår. Kjeller med innvendig og utvendig adkomst.
Grunnmurer oppført i Leca med utvendig og innvendig malt pussbehnadling. Yttervegger oppført i bindingsverk hovedsakelig med utvendig liggende kledningsbord, stående kledningsbord i gavlene. Utvendige overflatebehandlinger fra perioden 2024-2025. Etasjeskille med betongdekke. Saltakkonstruksjon på opprinnelig del, takkonstruksjon med inngangsparti med sperrekonstruksjoner. Tekking med metallplater på hoveddel og takfolie over inngangsparti, renner og nedløp i metall samt i malt aluminium. Dører og vinduer hovedsakelig fra opprinnelig byggeår med blandet slitasjegrad, 4-vinduer med isolerglass. Vinduer i 1. etasje opplyst skiftet de senere år. Boligens primære oppvarming med strøm- og vedfyring. Montert luft/luft varmepumpe spisestue, peisestue samt i kjellerbod mot sydøst. Ventilasjon med mekaniske avtrekk på kjøkken, øvrig ventilasjon med naturlig avtrekk via himlingsventiler og luftespalter i øvre del av vinduskarm. Vann- og avløpssystem fra opprinnelig byggeår, EL-førende installasjoner med blandet alder.

Kjeller uten etablerte risiko konstruksjoner ved gulv og vegger. Gulv med betong og vegger med malt murverk. Kjeller med noe mangelfull ventilasjon, mekanisk avtrekk anbefales og ettermonteres for å bedre luftsirkulasjonen i kjellerarealer.

Følgende er anmerket i takstmannens tilstandsrapport:

Bygningsdeler med TG2 (tilstandsgrad 2):
* Drenering > Tilstandsgrad satt ut i fra elde.
* Grunnmur og fundament > Tilstand grunnet elde.
* Rom under terreng > Kjelleren fremsto ved befaringen med generelt liten fuktbelastning, men med noe saltutslag, svertesopp, malingavflassing og lokal slitasje som er ett tegn på tradisjonell fuktproblematikk vedrørende rom under terreng.*- Vinduer og dører > Vinduer og dører med blandet alder og slitasjegrad. Tilstand grunnet elde og påviste forhold (se tilstandsrapport).
* Yttervegger > Kledningsbord fra opprinnelig byggeår med preg av jevnlig vedlikehold. Normal levetid ved jevnlig vedlikehold er ca. 50 år.
* Loft (konstruksjonsoppbygging) > Påvist noe svertesopp på undertak ved himlingsluke, påvist forhold settes i sammenheng med varmluftlekkasje grunnet utett himlingsluke.
* Renner og nedløp > Tilstand grunnet elde.
* Takkonstruksjon > Tilstand grunnet elde.
* Taktekking > Taktekkingen har overskredet over halvparten av forventet levetid.
* Etasjeskille og gulv på grunn > Registrert avvik på 15 mm i peisestue innenfor en lengde på 2 meter Tilstandsgrad 2 gis med bakgrunn i standardens krav til godkjente måleavvik.
* Ildsted/Skorstein > Tilstand grunnet elde.
* Kjøkken > Modifiseringer og oppgradering bør påregnes, tilstand grunnet elde.
* Trapp > Trappen mangler håndløper langs veggen og åpninger ved opptrinn og rekkverk på over 10 cm.
* Avløpsrør > Det ble ikke registrert behov for tiltak, men med tanke på alder kan skader plutselig oppstå på anlegg av eldre årgang.
* Vannledninger > Påvist irr ved flere Cu-rør, ingen påviste lekkasjer. Synlig merket stoppekran ved inntaksrør i kjeller. Tilstand grunnet at vannførende installasjoner har overskredet av sin forventet levetid og påviste forhold.
* Elektrisk > Tilstandsgraden er vurdert ut fra den forenklede og begrensede kontrollen som forskriften inneholder.
* Ventilasjon > Slitasje ved innvendig ramter på vinduer med malingavflassing og fuktskjolder, forholdet settes i sammenheng med noe mangelfull ventilasjon.
* Øvrig > Innvendige overflater: Innvendige overflater hovedsakelig fra opprinnelig byggeår.
* Øvrig > Vaskerom: Det er manglende tilluftspalte ved dør slik at ventileringen av rommet ikke fungerer optimalt. Modifiseringer bør påregnes grunnet elde.
* Øvrig > Garasje med bygningsmasse med normalt vedlikehold alder tatt i betraktning. Noe vedlikehold kan påregnes grunnet elde.

Bygningsdeler med TG3 (tilstandsgrad 3).
* Vinduer og dører > Kjellervinduer: Vinduer fra byggeåret, det registreres flere vinduer med punkterte glass.
* Utstyr på tak > Det er ikke etablert noen snøfanger på taket.
* Våtrom > Bad 1: Baderom med blandet alder. Grunnet elde og påviste forhold (se tilstandsrapporten), må baderommet renoveres. Det er foretatt hulltaking med 73 mm hullbor fra tilstøtende peisstue. Ingen tegn til fuktproblematikk ved baderommet eller tilstøtende bygningsmasse som kan settes i sammenheng med rommets funksjoner.
* Våtrom > Bad 2: Baderom fra opprinnelig byggeår. Grunnet elde og påviste forhold (se tilstandsrapport), må baderommet renoveres. Slukmansjett ikke påvist, ukjent vedrørende membransystem, gulv med mangelfullt fallforhold. For å få tilstandsgrad 0 eller 1 må gulvet bygges om for å oppnå riktig fall/høyde til sluk. Ved fremtidig renovering må det påse at baderommet blir etablert med riktig fall etter gjeldene forskriftskrav. Ingen tegn til fuktproblematikk ved baderommet eller tilstøtende bygningsmasse som kan settes i sammenheng med rommets funksjoner.

Opplistingen over er ikke uttømmende og en oppfordres til å lese og sette seg grundig inn i alt i tilstandsrapporten og selgers egenerklæring.

Tilstandsgrad er et uttrykk for hvilken tilstand et objekt har i forhold til et definert referansenivå. Med TG2 menes det ifølge forskrift til avhendingslova at bygningsdelen har vesentlig avvik. Bygningsdelen kan enten ha feil utførelse, en skade eller symptomer på skade, sterk slitasje eller nedsatt funksjon. Graden gis når bygningsdelen trenger vedlikehold eller tiltak i nær fremtid. Graden skal også brukes når delen er gammel og det er grunn til a varsle om faren for skader på grunn av alderen, eller når det er grunn til a overvåke delen spesielt på grunn av risiko for større
skader eller følgeskader.

TG3 gis når bygningsdelen har store eller alvorlige avvik. Bygningsdelen har kraftige symptomer på forhold som man må regne med trenger utbedring straks eller innen kort tid. Graden skal også brukes ved påvist funksjonssvikt eller sammenbrudd.

For ytterligere opplysninger om vedlikehold/ standard og mangler, se vedlagt tilstandsrapport og selgers egenerklæring, vedlagt i salgsoppgaven.

Kommunale avgifter

Kommunale gebyrer er en kombinasjon av forskudd, abonnement og enkeltgebyrer fakturert etter levert tjeneste. Vi kjenner ikke samlet gebyr for en eiendom for et år før året er omme. Denne rapporten sammenstiller dette for fjoråret, med summer fordelt per fagområde. Tjenestene vil normalt ha en prisøkning hvert år, samt at forbruk på ulike tjenester kan variere fra år til år.
Løpende gebyr brukes for å fordele en årlig kostnad på flere innbetalinger.

Stortinget har vedtatt å redusere merverdiavgift (MVA) på vann- og avløpstjenester fra 25 % til 15 % fra og med 1. juli 2025. For å tilpasse oss de nye MVA-satsene har vi gjort nødvendige justeringer i datagrunnlaget og utelukket varer for vann, avløp og slam med mva 25%. Dette for å unngå at det vises dobbelt opp av årsprognoser for disse varene.

Prognosene for inneværende år kan avvike, spesielt ved årsskifte. Dette kan skyldes at enhetspriser ikke er oppdatert for nytt år eller at noen gebyr foreløpig ikke er opprettet for nytt år.

For ytterligere informasjon, se kommunale gebyrer vedlagt i salgsoppgavens dokumentliste.

Tomten

Tilnærmet flat og lett skrånende tomt med gode solforhold, pent opparbeidet hage med blomster, prydbusker og noen trær. Tomten innerst i tallbakkvegen i landlige og idylliske omgivelser med fin utsikt til nærliggende landbruksområder og boligbebyggelse. Det er asfaltert innkjøring til eiendommen og steinbelagt adkomst fra garasjen, frem til inngang og uteplass.

Tomteareal for eiendom med GNR 39 /BNR 475 med 1363 m2 og tillegstomt på eiendom med GNR 39 /BNR 491 med 650 m2. Eiendommens samlet areal med tilsammen 2013 m2 er hentet fra www.eiendomsverdi.no.

Parkering

Det er parkering i en romslig dobbel garasje på ca. 43 kvm, hvorav en med elektrisk leddport med fjernkontroll og en manuell vippeport, uttak for strøm på 16 amp. og dekke av betong. Øvrig parkering på gårdsplass.

Energibruk/kostnader

Strømforbruket vil variere avhengig av bruk og antall personer i husstanden. Selger har valgt å ikke oppgi målt energibruk.

Radonmåling

Eiendommen ligger i et område som i NGU Radon aktsomhetskart er definert med "moderat til lav" aktsomhetsgrad. Dokumentasjon på radonsperre foreligger ikke. Radonmålinger er ikke foretatt, heller ikke andre tiltak mot radon og det er heller ikke krav til dette. Kjøper overtar eiendommen slik og er selv ansvarlig for å utføre eventuelle tiltak. For mer informasjon vedrørende radon se www.dsa.no.

Offentlig kommunikasjon

Sønsterud, buss med Linje 775, 781, 783, 793, ca. 0.4 km.
Flisa busstasjon, totalt 23 ulike linjer, ca. 6.6 km.
Togstasjon i Elverum, ca. 40 min. med bil.
Oslo Gardermoen ca. 1 t 42 min. med bil.

Oppvarming

Oppvarming med elektriske panelovener, varme i gulv på bad, 2 stk. luft-til-luft varmepumper, peisovn og vedovn.

Barnehage/skole/fritid

Sønsterud barnehage (1-5 år) 26 barn, 0.5 km.
Tyristubben Fus barnehage (1-5 år) 61 barn, 2.5 km.
Myrsnipa barnehage (1-5 år) 41 barn, 6.5 km.

Sønsterud skole er flyttet til ny skole på Flisa (1-7 kl.) ca. 7 km.
Åsnes ungdomsskole (8-10 kl.) 202 elever, 23 klasser, 7.2 km.
Solør vgs. avd. Våler, ca. 17 min. med bil.
Elverum videregående skole 800 elever, 41.7 km.

Sønsterud skole, Aktivitetshall, ballspill, fotball, 0.5 km.
Kjellmyra fotballbane, Aktivitetshall, fotball, 2.7 km.
Puls Flisa, ca. 8 min. med bil.
Victus Treningssenter, ca. 8 min. med bil.

Det er gangavstand til Fliselva med fine bade og fiskemuligheter. Kort vei til Gjesåsen klatrepark som fortsatt har barneløypa i drift, om man vil utfordre seg med høyder og spenning, anlegg som passer for alle alderstrinn.

Personopplysningsloven

I henhold til personopplysningsloven gjør vi oppmerksom på at interessenter kan bli registrert for videre oppfølgning.

Hvitvaskingsreglene

Eiendomsmeglere er underlagt Lov om tiltak mot hvitvasking og terrorfinansiering (hvitvaskingsloven) - L01.06.2018 nr. 23. Det følger av loven at megler bl.a. har plikt til å gjennomføre kundekontroll. I de tilfeller hvor kunden er juridisk person skal megler også kartlegge hvem som er reelle rettighetshavere. Med reelle rettighetshavere menes fysiske personer som eier eller kontrollerer mer enn 25% av eierandelene i selskapet. Partene må bidra til at kundekontrollen lar seg gjennomføre på en hensiktsmessig måte. Megler plikter å rapportere mistenkelige transaksjoner til Økokrim. Ved slik rapportering vil ikke partene blir varslet.

Vedlegg til Salgsoppgaven

Følgende dokumenter inngår i salgsoppgaven eller utleveres på forespørsel til megler:
Tilstandsrapport, datert 29.08.2025.
Selgers egenerklæring, datert 11.08.2025.
Energiattest, datert 28.08.2025.
Reguleringsbestemmelser, datert 07.08.2025.
Ferdigattest, datert 31.01.1973.
Byggetegninger, datert 1972 og 1983.

For ytterligere informasjon, se salgsoppgavens dokumentliste.

Lovverk

Avtaleforholdet mellom partene reguleres av avhendingslova (L03.07.1992 nr. 93 Lov om avhending av fast eigedom)

Diverse

Eiendomsmeglerforetaket er tilknyttet Reklamasjonsnemda for eiendomsmeglertjenester.

Vederlag

Tilrettelegging kr. 12 500,-
Meglerprovisjon 2% av salgssum.
Oppgjørskostnad kr. 6 900,-
Visning/overtagelse, pr. stk. kr. 2 500,-
Markedsføringspakke kr. 15 900,-
Fotografering kr. 6 900,-
Kommunal info kr. 9 500,-

Regulering

Opplysningene omfatter gjeldende planer og pågående planarbeid for eiendommen. Nærmere opplysninger om den enkelte plan med dokumenter, mindre endringer, etc. finnes på internett, Besøk kommunens hjemmeside for mer informasjon. Oppgitte delarealer viser planinformasjon på eiendommen.

Kommuneplaner. Id 2012001. Åsnes kommune 2019-2030. Kommuneplanens arealdel. Endelig vedtatt arealplan. Ikrafttredelse 23.09.2019. Delareal 1 363 m2. Arealbruk: Boligbebyggelse, Nåværende. Områdenavn B12.

Kommunedelplaner under arbeid. Id 2025001. Kommunedelplan for kulturminner og kulturmiljø. Planforslag, Kommunedelplan.

Reguleringsplaner. Id 19810004. Sønsterud 1. Eldre reguleringsplan. Endelig vedtatt arealplan. Ikrafttredelse 22.05.1981. Delareal 1 363 m2. Formål: Boliger. Feltnavn B 15.

Åsnes kommunes bestemmelser i tilknytning til reguleringsplan for Sønsterud I.

For ytterligere informasjon, se kommunale opplysninger vedlagt i salgsoppgavens dokumentliste.

Ferdigattest

Det foreligger ferdigattest på eiendommen datert 31.01.1973

Vei, vann og avløp

Eiendommen har adkomst fra gruset kommunal vei med asfaltert innkjøring til eiendommen, og er tilkoblet kommunalt vann- og avløpssystem.

Servitutter

På eiendommen er det tinglyst følgende heftelser og rettigheter som følger eiendommens matrikkel ved overskjøting til ny hjemmelshaver:

3418/39/475:
04.07.1972 - Dokumentnr: 2141 - Registrering av grunn
Denne matrikkelenhet opprettet fra:
Knr:3418 Gnr:39 Bnr:37

01.01.2020 - Dokumentnr: 154695 - Omnummerering ved kommuneendring
Tidligere: Knr:0425 Gnr:39 Bnr:491

05.02.1971 - Dokumentnr: 387 - Erklæring/avtale
Bestemmelse om vannledning
Vedlikehold
Gjelder denne registerenheten med flere

15.10.1970 - Dokumentnr: 2854 - Registrering av grunn
Denne matrikkelenhet opprettet fra:
Knr:3418 Gnr:39 Bnr:37

01.01.2020 - Dokumentnr: 1296299 - Omnummerering ved kommuneendring
Tidligere: Knr:0425 Gnr:39 Bnr:475

27.10.1970 - Dokumentnr: 3040 - Bestemmelse om veg
Rettighet hefter i: Knr:3418 Gnr:39 Bnr:37
Rettighet hefter i: Knr:3418 Gnr:39 Bnr:697
Gjelder denne registerenheten med flere

3418/39/491:
04.07.1972 - Dokumentnr: 2141 - Registrering av grunn
Denne matrikkelenhet opprettet fra:
Knr:3418 Gnr:39 Bnr:37

01.01.2020 - Dokumentnr: 154695 - Omnummerering ved kommuneendring
Tidligere: Knr:0425 Gnr:39 Bnr:491

05.02.1971 - Dokumentnr: 387 - Erklæring/avtale
Bestemmelse om vannledning
Vedlikehold
Gjelder denne registerenheten med flere

15.10.1970 - Dokumentnr: 2854 - Registrering av grunn
Denne matrikkelenhet opprettet fra:
Knr:3418 Gnr:39 Bnr:37

01.01.2020 - Dokumentnr: 1296299 - Omnummerering ved kommuneendring
Tidligere: Knr:0425 Gnr:39 Bnr:475

27.10.1970 - Dokumentnr: 3040 - Bestemmelse om veg
Rettighet hefter i: Knr:3418 Gnr:39 Bnr:37
Rettighet hefter i: Knr:3418 Gnr:39 Bnr:697
Gjelder denne registerenheten med flere.

Matrikkelinformasjon

  • Gårdsnr: 39
  • Bruksnr: 475
  • Kommunenr: 3418
Vis mer informasjon Vis mindre informasjon
Se komplett salgsoppgave

Detaljer

  • Verditakst: 2 350 000,-
  • Kommunale avgifter: 11 591,-
  • Ligningsverdi: 458 557,-
  • Primærrom: 271 m2
  • Bruksareal: 314 m2
  • Tomteareal: 1363 m2
  • Eierform: Eier (Selveier)
  • Boligtype: Enebolig
  • Soverom: 4

Fasiliteter

  • Barnevennlig
  • Bredbåndstilknytning
  • Garasje/P-plass
  • Hage
  • Kjæledyr tillatt
  • Ingen gjenboere
  • Kabel-TV
  • Offentlig vann/kloakk
  • Parkett
  • Peis/Ildsted
  • Rolig
  • Utsikt
  • Bademulighet
  • Fiskemulighet
  • Turterreng
  • Lademulighet

Tallbakkvegen 30 2280 Gjesåsen Norge

Visning

Ta kontakt for å avtale visning

Eiendomsmegler

Thomas Tangen
Mobil: +47 93 82 66 60

Annen info

Finnkode: 426208844
Denne nettsiden bruker cookies

Vi bruker informasjonskapsler for å forbedre brukeropplevelsen på nettstedet vårt og for personlig tilpasning av annonser. Ved å fortsette å bruke dette nettstedet samtykker du til vår bruk av informasjonskapsler. Avvis alle cookies