Våre annonser

Chr. Michelsens veg 5 2414 Elverum Norge

Kort om eiendommen

Velkommen til Fjeldsetlia og Chr. Michelsens veg 5!

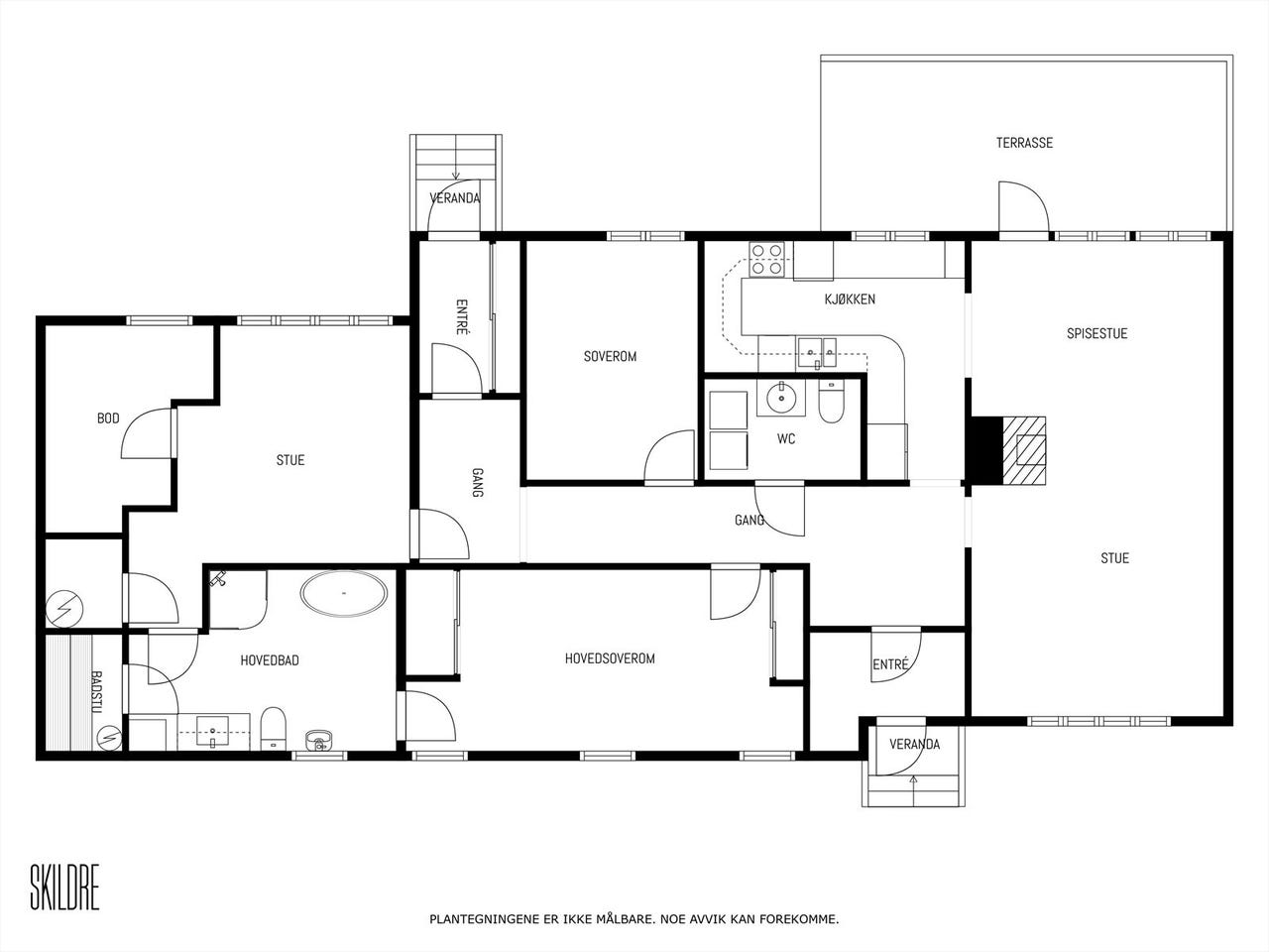
Her kan vi presentere en trivelig enebolig over et plan, med stue, spisestue, kjøkken, tre soverom, bad, toalettrom og badstue. Oppvarming med strøm og vedfyring. Varmepumpe i spisestuen. Elektrisk gulvvarme på badet. Romslig, overbygget terrasse. Inntilbygget carport og frittstående dobbelgarasje.

Eiendommen ligger sentralt til i et rolig og familievennlig område, med gangavstand til det aller meste, som skole, barnehage, dagligvare og sentrum. Kort vei til Svartholtet, med oppkjørte skiløyper og milevis med turterreng.

Velkommen til visning!

Meld deg på via påmeldingsknappen eller ta kontakt med Hans Petter Carlsson, eiendomsmegler MNEF på tlf. 911 25 518.

Beliggenhet

Eiendommen ligger ved Fjeldsetlia, i et godt etablert og populært boligområde. Området er meget barnevennlig, stille og rolig og har nærhet til skogen og fine turområder både sommer som vinter. På vinterstid er det oppkjørte skiløyper i Svartholtet og på sommerstid kan man både sykle, løpe og gå fotturer i samme området. Nærmeste dagligvare, Kiwi Fjeldset, ligger bare 400 meter fra eiendommen og det er godt tilrettelagt med gang- og sykkelstier som tar deg videre inn til sentrum.

Det er ca. 1.5 km til Elverum sentrum, hvor man finner det meste av det en måtte trenge til dagligdagse gjøremål. Ta en shoppingrunde på en av byens to kjøpesentre, rusle gjennom Storgata eller langs Glomma, ta en matbit på en av de mange spisestedene, gå på kino og mye annet. Elverum har to museer, Skogmuseet og Glomdalsmuseet, som ligger på hver sin side av elven Glomma. Her kan man gå fra det ene museets uteområde til det andre, også på kveldstid etter museenes stengetid. I mars arrangeres Grundsetmart`n. Da fylles byen opp med tivoli, salgsboder og underholdning for både små og store. Elverumsdagene arrangeres i august, sammen med de kjente jakt- og fiskedagene, Landsskytterstevne og Festspillene. Sykehuset Innlandet Elverum ligger i gangavstand fra eiendommen-

Elverum har et bredt utvalg innenfor skole og idrett. Høyskolen i Innlandet avdeling Elverum holder til på Terningen Arena, som ligger ca. 5 km. fra eiendommen. De har fokus på å utdanne elever innen folkehelse, idrett og sykepleie. I Terningen Arena finnes i tillegg en håndballhall, som blant annet er hjemmebanen til Elverum Håndball herrer. Arenaen har også turn- og klatrehall, bibliotek, treningssenter og kantine. Av og til avholdes det konserter og teater i arenaen, og da gjøres håndballhallen om til en konsert/teaterarena. Terningmoen militærleir ligger i tilknytning til arenaen.

Elverum har i tillegg til Høyskolen, en folkehøyskole beliggende på Søbakken. Elverum videregående skole ligger i gangavstand fra eiendommen, like ved Kremmertorget kjøpesenter og det finnes et større utvalg innen barne- og ungdomsskoler, samt barnehager. Ellers har Elverum et rikt utvalg av ulike lag og foreninger innenfor fotball, håndball, ski, svømming, turn, klatring mm.

Starmoen fritidspark ligger ca. 8 km øst for Elverum sentrum. Her finnes en flyplass med rikssenter for seilflyvning, en 18-hulls golfbane, et Go-kart senter, et motorsenter og en travbane, for å nevne noe.

Et av Nordens største alpinanlegg, Trysilfjellet, ligger en kjøretur på en time fra Elverum. Trysilfjellet kan i tillegg til vintersportsaktiviteter, by på en bikearena med både naturlige og maskinbygde sykkelstier på sommerstid samt sommer-skiskole.

Adkomst

Fra Elverum sentrum, følg Kirkvegen opp forbi Kremmertorget og kjør ca. en km. Ta til venstre inn på C.J. Hambros veg og deretter til høyre inn på Chr. Michelsens veg etter ca. 300 meter. Eiendommen ligger så på høyre side etter ca. 100 meter.

Det vil bli skiltet med Meglerhuset Østlandets visningsskilter ved annonserte fellesvisninger.

Standard

Her kan vi presentere en fin enebolig over et plan, som er holdt normalt godt vedlike. Noe utskiftninger og påkostninger må påregnes.

Stue & kjøkken
Romslig, lys stue med god plass til sofagruppe og tv-bord. Åpen løsning med spisestue. Oppvarming med blant annet vedfyring og varmepumpe. Adkomst til overbygget terrasse. Dels åpen løsning fra spisestue mot kjøkkenet.
Stort kjøkken med innredning av malte fronter og laminerte skrog. To overskap med glassfelt. benkeplate i laminat. Fliser på vegg over benkeplater. Kjøkkenet er innredet med integrerte hvitevarer som koketopp og stekeovn. Øvrige hvitevarer er montert i nisjer. Godt med skap- og benkeplass. Plass for to barkrakker ved vinduet for spiseplass. Ikke montert lekkasjevakt eller komfyrvakt. Ventilator over koketopp, med avkast ført via yttervegg direkte til friluft.

Soverom
Boligen har tre romslige og fine soverom. Lyst hovedsoverommet har godt plass til dobbeltseng. Integrerte skyvedørsgarderober. Direkte adkomst til badet. Det andre soverommet er malt i noe mørkere fargetoner og har god plass til soveromsmøblement og evt. kontormøblement dersom en ønsker det. Det tredje soverommet er i dag innredet og benyttet som stue, og har også direkte adkomst til badet.

Bad, toalettrom & badstue
Toalettrom med flislagt gulv og vegger med behandlet panel. Oppvarming med panelovn. Rommet er innredet med toalett og servant på innredning. Opplegg for vaskemaskin og tørketrommel. Naturlig avtrekk via himlingsventil, med tilluft via spalte under dørblad.
Bad med flislagt gulv og vegger fra ca. 1995. Badet er innredet med toalett, bide, servant på innredning, badekar og dusjkabinett. Opplyst at baderomsinnredningen er fra 2023. Mekanisk avtrekk med avkast ført direkte over tak, med tilluft via spalte under dørblad.
Badstue tilknyttet badet, med spaltegulv og vegger med panel. Badstuen er innredet med sittebenker i tre og elektrisk badstueovn. Lufteluke til badet.

EL-anlegg & VVS
Innvendige avløpsrør utført med PVC-plast. Avløpsrør i kryprom synlig isolert. Stakemulighet for avløpsanlegg ved avløpsstamme i kjelleren, samt via sluk eller andre installasjoner med avløp. Inntaksledning for vann av PEL. Ingen vannmåler montert. Vannførende installasjoner innvendig med Cu-rør. Vannførende installasjoner inne på badet er ført via yttervegg. Stoppekran plassert i innvendig bod og i benkeskap på kjøkkenet. Umerket stoppekran i innvendig bod.
Sikringsskap med skrusikringer plassert i vindfang. Hovedsakelig med porselenssikringer, fem kurser med automatsikringer. Sikringsskap i gang mot syd med automatsikringer. En-fase 230V anlegg med 50A hovedsikringer. Digital AMS måleravleser plassert i skap. Åpent ledningsnett hovedsakelig fra byggeåret. Luft/luft varmepumpe montert i spisestue fra 2021. Varmtvannsbereder fra 1973 med kapasitet på 100 liter plassert i kjøkkenbenk. Varmtvannsbereder av ukjent årstall med kapasitet på 200 liter plassert på gulv i bod. Ventilasjon i boligen hovedsakelig med naturlig ventilasjon. Kjøkken og bad med mekanisk avtrekk.

Hvitevarer

Integrerte hvitevarer medfølger salget.

Betalingsbetingelser

Med mindre annet er avtalt forutsettes det at kjøpesum inkl. omkostninger er innbetalt og disponibelt på meglerforetakets klientkonto senest to dager før overtakelse.

Overtagelse, tilleggsinfo.

Overtakelse etter avtale

Bebyggelse

Enebolig over et plan. Inntilbygget carport. Frittstående dobbelgarasje.

Byggemåte

Se vedlagte tilstandsrapport fra P.Nordbakken Takst AS v/ Pål Nordbakken, datert 20.03.2024, der byggemåte er nærmere beskrevet, og også gitte tilstandsgrader fremkommer.

Enebolig: Oppført i 1973. Byggegrunnen fremstår med stedbundne jordmasser med høy sand og siltsortering. Ringmurer i betong. Utvendige overflater uten overflatebehandlinger. Utvendige ringmurer fremstår uten etablert dreneringssystem, ingen synlige utvendige fuktsikringer. Yttervegger i bindingsverk med utvendig liggende kledningsbord. Utvendige fasader fremstår uten etablert lufting. Opplyst sist overflatebehandlet rundt 2018. Saltakkonstruksjon med kaldtloft. Lufting av kalftloft via spalter ved raft og ventiler i gavlene. Luftespalter mot raft uten insektnetting. Ingen etablerte gangbaner. Sperretakkonstruksjoner utført med prefabrikkerte takstoler. Himling mot kaldtloft isolert med mineralull. Taktekking med metallplater fra 2010 (Decra plater). Renner og nedløp av metall fra 2010. Krypkjeller under boligen med adkomst via utsparing i ringmur mot vest. Vinduer med isolerglass hovedsakelig fra opprinnelig byggeår. Etasjeskille med trebjelkelag. Innvendig ett-løps elementpipe.

Overbygget terrasse fundamentert på støpte betongpilarer. Gulv utført med 28x120 mm. impregnerte terrassebord. Malt rekkverk. Sperretakkonstruksjon tekket med transparente plater. Opplyst at det er lagt nytt terrassegulv i nyere tid.

Frittstående dobbelgarasje: Oppført i 1990. Gulv med støpt såle på mark. Yttervegger i bindingsverk med utvendig liggende kledningsbord. Fullisolert i himling og yttervegger. Saltakkonstruksjon. Ukjent vedrørende tekking. Renner og nedløp i metall. Vinduer med isolerglass fra byggeåret. Montert to leddporter med automatisk styring. Innlagt strøm.

Tilstandsgrader gis ut fra følgende kriterier:
-Tilstandsgrad 0: Ingen avvik.
-Tilstandsgrad 1: Mindre avvik
-Tilstandsgrad 2: Vesentlige avvik og mindre avvik som etter NS gir Tilstandsgrad 2.
-Tilstandsgrad 3: Store eller alvorlige avvik.
-TG IU: Ikke undersøkt/ikke tilgjengelig for undersøkelse.

På denne eiendommen har følgende bygningsdeler fått TG1: Drenering, takkonstruksjon, varmepumpe, sanitærutstyr på bad og resultat etter hulltaking på bad,

På denne eiendommen har følgende bygningsdeler fått TG2 (vesentlige avvik):
Grunnmur og fundament, tilstand gitt grunnet elde.
Krypkjeller, da de på generelt grunnlag vurderes som risikokonstruksjoner forbundet med rom under terreng. Det er etablert stubbloftplater av Eternitt i krypkjelleren. Disse platene inneholder asbest og må ved eventuell fjerning behandles som spesialavfall ved riving.
Balkong, terrasse og platting, da det er malte overflater med noe malingsoppsprekking og lokal slitasje. Utbedringer anbefales hvor terrengtrapp og dekkbord ligger på jomfruelig terreng og utsatt for fuktskader.
Vinduer og dører, da vedlikehold, utskiftninger og påkostninger på påregnes grunnet elde. Det ble påvist punkterte glass mot øst og mot sydvest. Vinduer med punkterte glass vurderes til TG3. Innvendig ramtre med fremtredende malingsavflassing og fuktskjolder, som settes i sammenheng med mangelfull ventilasjon og manglende vedlikehold over tid. Dørvridere på dører med noe slark/slitasje.
Yttervegger, da det er kledningsbord med noe endeoppsorekking, malingsoppsprekking og lokal slitasje. Kledning ligger stedvis noe nært terreng og er utsatt for fuktskader. Lokale utbedringer, utskiftninger og ny overflatebehandling på værutsatte steder må påregnes.
Loft, da himlingsluke er påvist med utettheter og det bør etableres gangbane for inspeksjonsmuligheter av kaldtloftet.
Renner og nedløp, da det er enkelte nedløp med deformasjonsskader grunnet ytre påvirkninger.
Etasjeskille/gulv på grunn, da det er gulvflater med noe skjevheter. Påvist noe bevegelse i etasjeskille stue mot nordvest.
Ildsted/skorstein, da sotluke er montert nærmere enn 30 cm. fra brennbart materiale (gulv).
Overflater og innredning på kjøkkenet grunnet elde. Mindre svelleskade på underside av benkeplate ved oppvaskkum og oppvaskmaskin.
Ventilator på kjøkkenet grunnet elde.
Toalettrom, da evt. lekkasjevann ikke er ivaretatt ved at det ikke er montert lekkasjevakt.
Innvendige avløpsrør, da rørende har nådd en høy alder og gir økt risiko for skade i tiden som kommer.
Innvendige vannledninger, da de er fra byggeåret og har nådd en alder hvor det vil være økt risiko for lekkasjer. Påvist irring ved flere Cu-rør.
Elektrisk anlegg, da det er noe utettheter ved rørinnføringer i sikringsskapet. Enkelte stikk og brytere med skader. Det foreligger ikke el-tilsynsrapport de siste fem årene.
Varmtvannsbereder i kjøkkenbenk, da denne er over tjue år, samt at den kun er tilkoblet støpsel. Bør være fast tilkobling.
Varmtvannsbereder i bod, da denne er over tjue år, er kun tilkoblet støpsel og er plassert i et rom uten sluk.
Ventilasjon, da det er mangelfull ventilasjon i boligen. Anbefales montering av klaffventiler på yttervegg.
Bad, da det er fra ca. 1995 og har passert over halvparten av forventet levetid. Det er registrert "bom" i gulvfliser, samt enkelte fliser med noe avskalling og lokal slitasje.
Membran, tettesjikt og sluk på bad grunnet elde.
Ventilasjon på bad grunnet alder på mekanisk avtrekk.
Badstu grunnet elde og usikkerhet rundt utførelse. Badstue benyttet som lagringsplass ved takstmannens befaring.
Frittstående garasje, da kledning ligger stedvis noe nært terrengnivå og er utsatt for fuktskader og det er utvendige fasader med noe omfang av malingsoppsprekking og lokal slitasje.

På denne eiendommen har følgende bygningsdeler fått TG IU: Taktekking og utstyr på tak.

Kommunale avgifter

De kommunale avgiftene inkluderer renovasjon, feiing og vann og avløp.

Tomten

Normale solforhold. Utsyn mot vest over nærliggende boligområder. Nedkjøring til garasje belagt med belegningsstein. Vestvendt tomt med etablert hage og plen samt diverse beplantning. Inntrukket inngangsparti mot øst. Overbygget terrasse mot vest.

Parkering

Parkering i inntilbygget carport og frittstående dobbelgarasje. Øvrig parkering på oppstillingsplass foran eiendommen.

Energibruk/kostnader

Selger har ikke oppgitt strømforbruk. Strømforbruket vil variere avhengig av bruk og antall personer i husstanden.

Radonmåling

Det er ikke foretatt radonmålinger, og bygget er heller ikke utført med radonsperre.

Oppvarming

Oppvarming av boligen med strøm og vedfyring. Luft/luft varmepumpe montert i spisestue. Elektriske varmekabler i gulv på badet. Tidligere fyringsanlegg med parafinbrenner og innvendig dagtank er opplyst fjernet.

Barnehage/skole/fritid

Avstand til nærmeste skole/barnehage:
Svartholtet barnehage, ca. 300 meter.
Frydenlund skole, ca. 1,4 km.
Elverum ungdomsskole, ca. 3 km.
Elverum videregående skole, ca. 1,6 km.
Høyskolen i Innlandet, studiested Elverum, ca. 5 km.

Personopplysningsloven

I henhold til personopplysningsloven gjør vi oppmerksom på at interessenter kan bli registrert for videre oppfølgning.

Hvitvaskingsreglene

Eiendomsmeglere er underlagt Lov om tiltak mot hvitvasking og terrorfinansiering (hvitvaskingsloven) - L01.06.2018 nr. 23. Det følger av loven at megler bl.a. har plikt til å gjennomføre kundekontroll. I de tilfeller hvor kunden er juridisk person skal megler også kartlegge hvem som er reelle rettighetshavere. Med reelle rettighetshavere menes fysiske personer som eier eller kontrollerer mer enn 25% av eierandelene i selskapet. Partene må bidra til at kundekontrollen lar seg gjennomføre på en hensiktsmessig måte. Megler plikter å rapportere mistenkelige transaksjoner til Økokrim. Ved slik rapportering vil ikke partene blir varslet.

Vedlegg til Salgsoppgaven

Følgende dokumenter inngår i salgsoppgaven eller utleveres på forespørsel til megler:
Tilstandsrapport
Selgers egenerklæring
Reguleringsbestemmelser
Midlertidig brukstillatelse

Lovverk

Avtaleforholdet mellom partene reguleres av avhendingslova (L03.07.1992 nr. 93 Lov om avhending av fast eigedom)

Diverse

Det er ikke innhentet særskilt informasjon fra e-verk.

Opplyst fra Midt-Hedmark Brann- og redningsvesen at siste tilsyn på eiendommen ble utført 27.03.2023 og siste feiing ble utført 20.06.2017. Det ble besøkt for feiing i 2021, men arbeidet ble ikke utført. På eiendommen er det registrert to enkle røykvarslere og to pulverapparater samt et ildsted. Ingen avvik eller anmerkninger registrert.

Meglerkontoret er tilknyttet Reklamasjonsnemnda for eiendomsmeglertjenester.

Visningsliste og visningspåmelding er et hjelpemiddel i salgsprosessen, og det gis ingen garanti for at man blir kontaktet ved å skrive seg på listen eller melde seg på visning. Dersom man vil være sikker på å bli holdt orientert om blant annet bud, bør man selv ta kontakt med megler.

Servitutter

På eiendommen er det tinglyst følgende heftelser og rettigheter som følger eiendommens matrikkel ved overskjøting til ny hjemmelshaver:

Dagboksnummer 192, tinglyst 14.01.1972 - Forbud mot næringsvirksomhet, bestemmelser om vann og kloakkledninger mm.

Kopi av dokumentet kan fås ved henvendelse til megler.

Vederlag

Tilrettelegging kr. 13 800,-
Oppgjørkostnad kr. 6 900,-
Markedsføringspakke kr. 15 800,-
Kommunale opplysninger kr. 9 800,-
Meglerhonorar kr. 50 000,-
Visning pr. stk. kr. 2 000,-

Regulering

Eiendommen ligger i et område regulert til boligbebyggelse. Reguleringsplan "Fjeldset, Fjeldsetlia", plan id 22 gjelder. For øvrig gjelder Kommunedelplan for Elverum byområde, plan id 2018006.
Det foreligger ikke igangsatte reguleringsplaner/planforslag på eiendommen i kommunens arkiver.

Ferdigattest

Det foreligger midlertidig brukstillatelse eneboligen datert 03.10.1973.
Det foreligger godkjente byggetegninger av tilbygg garasje og tak over terrasse, samt byggetegninger av eneboligen.

Vei, vann og avløp

Adkomst til eiendommen via kommunal veg.
Eiendommen er tilknyttet offentlig vann- og avløpsanlegg via private stikkledninger. Det er ikke registrert vannmåler på eiendommen.

Ansvarlig megler

Hans Petter Carlsson

Matrikkelinformasjon

  • Gårdsnr: 30
  • Bruksnr: 656
  • Kommunenr: 3420
Vis mer informasjon Vis mindre informasjon
Se komplett salgsoppgave

Detaljer

  • Verditakst: 3 480 000,-
  • Kommunale avgifter: 17 065,-
  • Ligningsverdi: 1 051 977,-
  • Primærrom: 156 m2
  • Bruksareal: 198 m2
  • Eierform: Eier (Selveier)
  • Boligtype: Enebolig
  • Soverom: 3

Fasiliteter

  • Balkong/Terrasse
  • Barnevennlig
  • Garasje/P-plass
  • Hage
  • Offentlig vann/kloakk
  • Peis/Ildsted
  • Rolig
  • Sentralt
  • Turterreng

Chr. Michelsens veg 5 2414 Elverum Norge

Visning

Ta kontakt for å avtale visning

Eiendomsmegler MNEF / Daglig leder

Hans Petter Carlsson
Mobil: +47 91 12 55 18

Annen info

Finnkode: 345195463
Denne nettsiden bruker cookies

Vi bruker informasjonskapsler for å forbedre brukeropplevelsen på nettstedet vårt og for personlig tilpasning av annonser. Ved å fortsette å bruke dette nettstedet samtykker du til vår bruk av informasjonskapsler. Avvis alle cookies