Våre annonser

Nordstadvegen 130 2412 Sørskogbygda Norge

Kort om eiendommen

Velkommen til Sørskogbygda og Nordstadvegen 130!

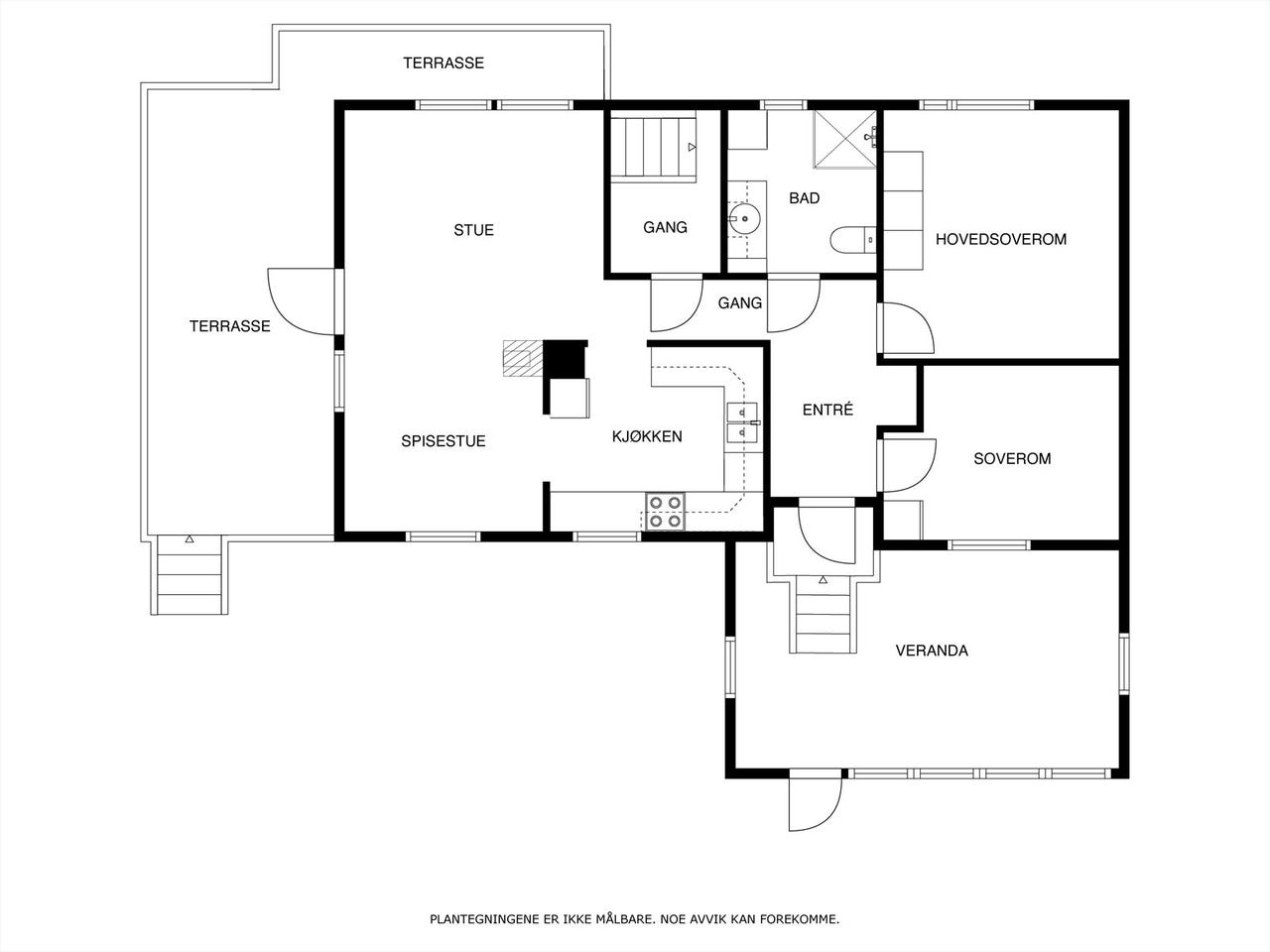
Her kan vi presentere en godt vedlikeholdt enebolig over et plan med kjeller. Eneboligen har stue, kjøkken, bad og to soverom og ble tilbygget i 2016 med sommerstue mot sør. Terrasse med fin utsikt og gode solforhold. Romslig tomt med blant annet et frittstående uthus.

Eneboligen er omkranset av fin natur og det er gode turmuligheter i område både sommer som vinter. Bergesjøen ligger i overkant av 6 km. fra eiendommen.

Det er ca. 6 km til Sørskogbygda med blant annet dagligvare, barnehage og skole og ca. 20 km til Elverum sentrum, som kan by på det meste av servicefasiliteter.

Velkommen til visning!

Benytt egen knapp for visningspåmelding, eller kontakt Hans Petter Carlsson, eiendomsmegler MNEF på tlf. 911 25 518

Beliggenhet

Enebolig beliggende i Sørskogbygda, i landlige og familievennlige omgivelser, med milevis med skogsterreng for fotturer og flere små tjern man kan både bade, fiske og padle i. Rensjøen og Renosdammen er ypperlig for både bading, fisking og padling, samt Lisjøen, som er et nydelig sted som egner seg godt for bading og fiske, og med sitt rolige vann er det også en ypperlig arena for kanopadling. Bergesjøen, med sin fine badeplass er også et alternativt verdt å besøke. Til Sørskogbygda sentrum er det ca. 6 km og her finner man blant annet barnehage, Coop marked dagligvare, kirke, samfunnshus, barneskole og treningssenter. For et ytterligere større servicetilbud er det ca. 20 km til Elverum sentrum.

I Elverum sentrum finnes det meste av det du måtte trenge til dagligdagse gjøremål. Ta en shoppingrunde på en av byens to kjøpesentre, rusle gjennom Storgata eller langs Glomma, ta en matbit på en av de mange spisestedene, gå på kino og mye annet. Elverum har to museer, Skogmuseet og Glomdalsmuseet, som ligger på hver sin side av elven Glomma. Her kan man kan gå fra det ene museets uteområde til det andre, også på kveldstid etter museenes stengetid.

I mars arrangeres Grundsetmart`n. Da fylles byen opp med tivoli, salgsboder og underholdning for både små og store. Elverumsdagene arrangeres i august, sammen med de kjente jakt- og fiskedagene, Landsskytterstevne og Festspillene.

Elverum har et bredt utvalg innenfor skole og idrett. Høyskolen i Innlandet avdeling Elverum holder til på Terningen Arena, som ligger ca. 23 km. fra eiendommen. De har fokus på å utdanne elever innen folkehelse, idrett og sykepleie. I Terningen Arena finnes i tillegg en håndballhall, som blant annet er hjemmebanen til Elverum Håndball herrer. Arenaen har også turn- og klatrehall, bibliotek, treningssenter og kantine. Av og til avholdes det konserter og teater i arenaen, og da gjøres håndballhallen om til en konsert/teaterarena. Terningmoen militærleir ligger i tilknytning til arenaen.

Elverum har i tillegg til Høyskolen, en folkehøyskole beliggende på Søbakken. Elverum videregående like ved Kremmertorget kjøpesenter, og det finnes et større utvalg innen barne- og ungdomsskoler, samt barnehager.
Ellers har Elverum et rikt utvalg av ulike lag og foreninger innenfor fotball, håndball, ski, svømming, turn, klatring mm.

Starmoen fritidspark ligger ca. 8 km øst for Elverum sentrum. Her finnes en flyplass med rikssenter for seilflyvning, en 18-hulls golfbane, et Go-kart senter, et motorsenter og en travbane, for å nevne noe.

Et av Nordens største alpinanlegg, Trysilfjellet, ligger en kjøretur på en liten time fra Elverum. Trysilfjellet kan i tillegg til vintersportsaktiviteter, by på en bikearena med både naturlige og maskinbygde sykkelstier på sommerstid samt sommer-skiskole.

Adkomst

Fra Elverum sentrum, følg Rv3 i retning Trysil og ta til høyre inn på Sørskogbygdvegen ved Circle K Hernes. Følg vegen ca. 11 km og ta deretter til venstre inn på Nordstadvegen og eiendommen ligger på venstre side etter ca. 1,3 km.

Det vil bli skiltet med Meglerhuset Østlandets visningsskilter ved annonserte fellesvisninger.

Standard

Her kan vi presentere en godt ivaretatt enebolig av typen Horten Hus, med normal standard ut i fra alder og konstruksjon. Tilbygget i 2016 med sommerstue mot sør. Frittstående uthus med standard fra byggeåret, som er holdt jevnlig vedlike.

Stue & kjøkken
Lys, koselig stue med god plass til sofakrok og tv-bord samt spisebord. Adkomst til terrasse. Oppvarming med blant annet vedfyring og varmepumpe. Buet åpning inn til kjøkkenet fra spisestuen.
Kjøkken med innredning antatt fra byggeåret. Kjøkkenet har laminerte benkeplater, over- og underskap med sporfreste fronter og med fliser i benkerygg. Godt med skap- og benkeplass. Opplegg for oppvaskmaskin. Kjøkkenventilator med avtrekk ut. Plass for frittstående hvitevarer som komfyr og kjøleskap/frys.

Soverom
Eneboligen har to romslige soverom, begge med god plass til seng og garderobeskap.

Bad & vaskerom
Bad fra byggeåret med overflater av våtromsplater. Badet er innredet med servant på innredning, toalett og dusjhjørne med vegghengt dusj. Opplegg for vaskemaskin. Mekanisk avtrekk med tilluftsspalte under døren. Ventilasjon gjennom vindusventil.

EL-anlegg & VVS
Stoppekran plassert i kjelleren. Vannledninger av rør i rør og noe med kobberrør. Fordelerstokk montert på vegg i kjelleren. Utvendig vannkran. Avløpsledninger av PVC. Kloakk antatt luftet over tak. Ventilasjon gjennom vegg og vindusventiler. Luft/luft varmepumpe montert i stuen. Varmtvannsbereder fra 2000 med kapasitet på 198 liter plassert i kjelleren.
El-skap med automatsikringer montert på veggen i entreen. Merkede kurser. Strømåler. Skjult ledningsnett. 56A hovedsikring.

Betalingsbetingelser

Med mindre annet er avtalt forutsettes det at kjøpesum inkl. omkostninger er innbetalt og disponibelt på meglerforetakets klientkonto senest to dager før overtakelse.

Overtagelse, tilleggsinfo.

Overtakelse etter avtale.

Bebyggelse

Enebolig over et plan med kjeller. Frittstående uthus.

Byggemåte

Se vedlagte tilstandsrapport fra Sørlie Takst AS v/ Erik Sørlie, datert 19.05.2023, der byggemåte er nærmere beskrevet, og også gitte tilstandsgrader fremkommer.

Enebolig: Type Horten Hus, oppført i 2000. Byggegrunn med antatt jord- og morenemasser. Fuktsikring med grunnmursplast, festet i topplist. Drenering og fuktsikring er ellers ikke synlig da den er nedgravd og ikke tilgjengelig. Antatt fundamentert med støpte såler til fast byggegrunn. Kjelleryttervegger av murte lettklinkerblokker. Etasjeskiller i trebjelkelag som er isolert med mineralull. Bjelkelaget er understøttet med ståldrager og lettklinkerblokker. Tak tekket med betongtakstein, del med profilerte metallplater over sommerstue. Saltakkonstruksjon av fabrikerte w-takstoler med undertak med ranittplater. Himling isolert med mineralull. Lakkerte renner og nedløp i stål. Lufting av takkonstruksjon gjennom åpning i gavlvegg og ved raft. Overbygget takkonstruksjon over terrasse som er understøttet med tresøyler. Overbygget takkonstruksjon over sommerstue som sperretakkonstruksjon med bordet undertak. Yttervegger i vindingsverk, isolert med mineralull, utvendig kledd med tømmermannspanel og med liggende panel i gavlveggene. Vinduer med 2-lags isolerglass fra 2020. Elementpipe.

Dels overbygget veranda, understøttet med betongpilarer, lettklinkerblokker og stolper.

Sommerstue: Tilbygget i 2016. Belagt med belegningsstein. Overflater med malt panel og tømmermannspanel. Sperretakkonstruksjon med bordet undertak, understøttet med tresøyler. Montert strålelampe. Eldre varevindu med 1+1 glass.

Uthus: Oppført i 2003. Støpt gulv med sokkel av lettklinkerblokker. Oppført i uisolert bindingsverk. Sperretakkonstruksjon med undertak av trefiberplater. Yttervegger kledd med tømmermannpanel. Pulttakkonstruksjon tekket med profilerte metallplater. Ingen renner og nedløp. Påvist fuktskjolder i undertak.

De bygningsdeler som har fått TG0 (ingen avvik) på denne eiendommen er: Terrengforhold.

De bygningsdeler som har fått TG1 (mindre eller moderate avvik) på denne eiendommen er: Takkonstruksjon/loft over sommerstue, vinduer, ytterdører, utvendige trapper, innvendige overflater med malt panel, malt strietapet og brystningspanel, sanitærutstyr og innredning på badet, ventilasjon på badet, resultat etter hulltaking på badet, overflater og innredning på kjøkkenet, avtrekk på kjøkkenet, innvendige avløpsrør, ventilasjon generelt og varmepumpe.

De bygningsdeler som har fått TG2 (avvik som ikke krever tiltak) på denne eiendommen er: Taktekking, veggkonstruksjon, takkonstruksjon/loft, balkonger/terrasser og rom under balkonger, innvendige overflater med vinylbelegg, etasjeskille/gulv mot grunn, rom under terreng, innvendige dører, overflater på gulv på badet, sluk/membran/tettesjikt på badet, innvendige vannledninger, varmtvannstank og elektrisk anlegg.

De bygningsdeler som har fått TG2 (avvik som kan kreve tiltak) på denne eiendommen er:
Nedløp og beslag, da det mangler snøfangere på hele eller deler av taket (det var ikke et krav om dette på byggemeldingstidspunktet) og det er rust på pipebeslag til pipe.
Radon, da det ikke er foretatt radonmålinger og bygget heller ikke er utført med radonsperre.
Pipe- og ildsted, da det er påvist sprekk i jernplate inne i ovn.
Overflater på vegger og himling på badet, da overflater er eldre enn normal levetid og oppgraderinger og utskiftninger må påregnes. Det er i tillegg vindu i dusjsonen, hvor dusjdører riktignok hindrer direkte vannsprut på vinduet.
Drenering, da det er påvist skader i grunnmursplast over terreng.
Grunnmur og fundamenter, da det er registrert skråriss, noe som er et symptom på setninger og det er påvist noe kalkutslag i utvendig grunnmur.

De bygningsdeler som har fått TG3 (store eller alvorlige avvik) på denne eiendommen er:
Innvendig tretrapp til kjeller, da det ikke er montert rekkverk.
Branntekniske forhold, da brannslukningsapparatet er eldre enn 10 år.

Uthuset er ikke vurdert med tilstandsgrader.

Kommunale avgifter

De kommunale avgiftene inkluderer feiing, renovasjon og slam.

Tomten

Delvis naturtomt som heller mot vest. Hageanlegg opparbeidet med plen og variert beplantning. Innkjøring og parkering belagt med belegningsstein. Tomten er dels inngjerdet med hekk. Solrik beliggenhet med fin utsikt og terrasse orientert mot vest.

Parkering

Parkering på gruset oppstillingsplass foran eiendommen, med plass til flere kjøretøy.

Energibruk/kostnader

Boligen selges av arving. Vedkommende har ikke bebodd eiendommen, og har ikke forutsetninger for å kunne si noe om energibruk i denne.

Radonmåling

Det er ikke foretatt radonmålinger og bygget er heller ikke utført med radonsperre.

Offentlig kommunikasjon

Det er ca. 2 km. til nærmeste bussholdeplass langs Kynnstadvegen.

Oppvarming

Oppvarming av boligen med strøm og vedfyring. Luft/luft varmepumpe i stuen.

Barnehage/skole/fritid

Avstand til nærmeste skole/barnehage:
Sørskogbygda naturbarnehage, ca. 6 km.
Sørskogbygda skole, ca. 5,4 km.
Elverum ungdomsskole, ca. 20 km.
Elverum videregående skole, ca. 21 km.
Høyskolen i Innlandet, Campus Elverum, ca. 23 km.

Personopplysningsloven

I henhold til personopplysningsloven gjør vi oppmerksom på at interessenter kan bli registrert for videre oppfølgning.

Hvitvaskingsreglene

Eiendomsmeglere er underlagt Lov om tiltak mot hvitvasking og terrorfinansiering (hvitvaskingsloven) - L01.06.2018 nr. 23. Det følger av loven at megler bl.a. har plikt til å gjennomføre kundekontroll. I de tilfeller hvor kunden er juridisk person skal megler også kartlegge hvem som er reelle rettighetshavere. Med reelle rettighetshavere menes fysiske personer som eier eller kontrollerer mer enn 25% av eierandelene i selskapet. Partene må bidra til at kundekontrollen lar seg gjennomføre på en hensiktsmessig måte. Megler plikter å rapportere mistenkelige transaksjoner til Økokrim. Ved slik rapportering vil ikke partene blir varslet.

Vedlegg til Salgsoppgaven

Følgende dokumenter inngår i salgsoppgaven eller utleveres på forespørsel til megler:
Tilstandsrapport
Selgers egenerklæring
Ferdigattest

Lovverk

Avtaleforholdet mellom partene reguleres av avhendingslova (L03.07.1992 nr. 93 Lov om avhending av fast eigedom).

Diverse

Det er ikke innhentet særskilte opplysninger fra e-verk.

Opplyst fra Midt-Hedmark Brann- og redningsvesen at siste tilsyn på eiendommen var 09.03.2023 og siste feiing var 26.10.2022. Det er registrert et ildsted og en enkel røykvarsler på eiendommen samt et pulverapparat. Det kommenteres at slokkeutstyret ikke er kontrollert og vedlikeholdt og at pulverapparatet er eldre enn ti år. Dette må byttes ut.

Meglerkontoret er tilknyttet Reklamasjonsnemnda for eiendomsmeglertjenester.

Visningsliste og visningspåmelding er et hjelpemiddel i salgsprosessen, og det gis ingen garanti for at man blir kontaktet ved å skrive seg på listen eller melde seg på visning. Dersom man vil være sikker på å bli holdt orientert om blant annet bud, bør man selv ta kontakt med megler.

Servitutter

På eiendommen er det tinglyst følgende heftelser og rettigheter som følger eiendommens matrikkel ved overskjøting til ny hjemmelshaver:

Dagboknummer 428, tinglyst 25.01.2000 - Bestemmelse om vannrett - Nåværende og senere eiere av gnr 180, bnr 143 i Elverum kommune gir rett til å ta vann i eksisterende brønn på hovedbruket med gnr 180, bnr 50. Rettigheten omfatter også rett til å anlegge og vedlikeholde vannledning over hovedbruket.

Kopi av dokumentet kan fås ved henvendelse til megler.

Vederlag

Tilrettelegging kr. 12 500,-
Oppgjørkostnad kr. 6 900,-
Markedsføringspakke kr. 15 800,-
Kommunale opplysninger kr. 9 800,-
Visning pr. stk. kr. 2 000,-
Meglerhonorar 2,5% av salgssum.

Regulering

Eiendommen ligger i et LNF-område hvor landbruk dominerer. Kommuneplanens arealdel, planid KPL 2011-2022 gjelder. Det foreligger ingen igangsatte reguleringsplaner/planforslag på eiendommen i kommunens arkiver.

Ferdigattest

Det foreligger ferdigattest på eneboligen datert 17.08.2001, i tillegg til godkjente byggetegninger.

Vei, vann og avløp

Adkomst til eiendommen via kommunal veg.
Eiendommen er ikke tilknyttet offentlig vann- og avløpsanlegg. Det foreligger ingen pålegg om endring av tilknytningsforholdet i følge kommunen. Eiendommen har privat avløpsanlegg med slamavskiller, som tømmes hvert 2. år. Den ble sist tømt 23.05.2022. Privat vann fra kilde med naturlig trykk.

Ansvarlig megler

Hans Petter Carlsson

Matrikkelinformasjon

  • Gårdsnr: 180
  • Bruksnr: 143
  • Kommunenr: 3420
Vis mer informasjon Vis mindre informasjon
Se komplett salgsoppgave

Detaljer

  • Verditakst: 1 790 000,-
  • Kommunale avgifter: 5 380,-
  • Ligningsverdi: 499 682,-
  • Primærrom: 74 m2
  • Bruksareal: 150 m2
  • Tomteareal: 2652 m2
  • Eierform: Eier (Selveier)
  • Boligtype: Enebolig
  • Soverom: 2

Fasiliteter

  • Balkong/Terrasse
  • Barnevennlig
  • Garasje/P-plass
  • Hage
  • Peis/Ildsted
  • Rolig
  • Utsikt
  • Turterreng

Nordstadvegen 130 2412 Sørskogbygda Norge

Visning

Ta kontakt for å avtale visning

Eiendomsmegler MNEF / Daglig leder

Hans Petter Carlsson
Mobil: +47 91 12 55 18

Annen info

Finnkode: 304213520
Denne nettsiden bruker cookies

Vi bruker informasjonskapsler for å forbedre brukeropplevelsen på nettstedet vårt og for personlig tilpasning av annonser. Ved å fortsette å bruke dette nettstedet samtykker du til vår bruk av informasjonskapsler. Avvis alle cookies